Willkommen in der Wohnung

Lütj Winter

Eine exklusive Wohnung mit zeitgemäßem Komfort und engem Bezug zur Geschichte der Villa.

Lütj Winter verweist auf eine Zeit, in der das Leben im Haus den Jahreszeiten folgte – und Räume je nach Jahreszeit unterschiedlich genutzt wurden.

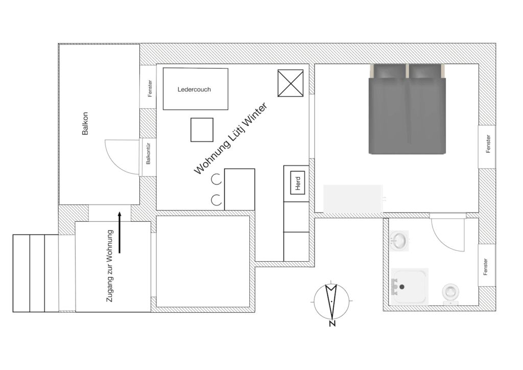
der Grundriss einer Wohnung

Lütj Winter ist das Pendant zu Lütj Fürst und folgt derselben klaren Raumstruktur. Die Wohnung verbindet zeitgemäßen Komfort mit einer angenehmen, unverstellten Wohnatmosphäre.

Der offen gestaltete Wohn- und Küchenbereich öffnet sich auf einen Balkon und bildet den Mittelpunkt der Wohnung. Die klare Gliederung der Räume schafft ein stimmiges Wohngefühl, das Raum für Alltag wie für Erholung lässt.

Das Schlafzimmer ist ruhig zur Gartenseite gelegen. Die Trennung von Wohn- und Schlafbereich unterstützt ein angenehmes Wohnen für entspannte Tage.

Letj Winter ist ein Ort für Gäste, die eine klare, authentische Atmosphäre schätzen.

Highlights der Wohnung

Balkon Icon

1 Balkon

Wohnzimmer Icon

Offener Wohn-/Essbereich

Bett Icon

1 Schlafzimmer

Dusche Icon

Hochwertiges Badezimmer

Balkon Icon

1 Balkon

Wohnzimmer Icon

Offener Wohn-/Essbereich

Dusche Icon

Regendusche

Bett Icon

1 Schlafzimmer

Küche Icon

Voll ausgestattete Küche

TV & Hi-Fi Icon

Moderne Technik

Küche Icon

Voll ausgestattete Küche

TV & Hi-Fi Icon

Moderne Technik

Die Nordsee und eine große Brücke dahinter geht die Sonne unter
Pfeiler einer alten Brücke am Strand in Wyk auf Föhr
Pfeiler einer Strandbrücke am Südstrand in Wyk auf Föhr