Willkommen in der Wohnung

Lütj Fürst

Eine exklusive Wohnung mit besonderer Geschichte, ruhiger Atmosphäre und zeitgemäßem Komfort.

Lütj Fürst bedeutet sinngemäß „Kleiner Fürst“. Der Name erinnert daran, dass diese Räume einst der Salon der Villa waren – und später als erste Räume besonders sorgfältig und stilvoll – also fürstlich- erneuert wurden.

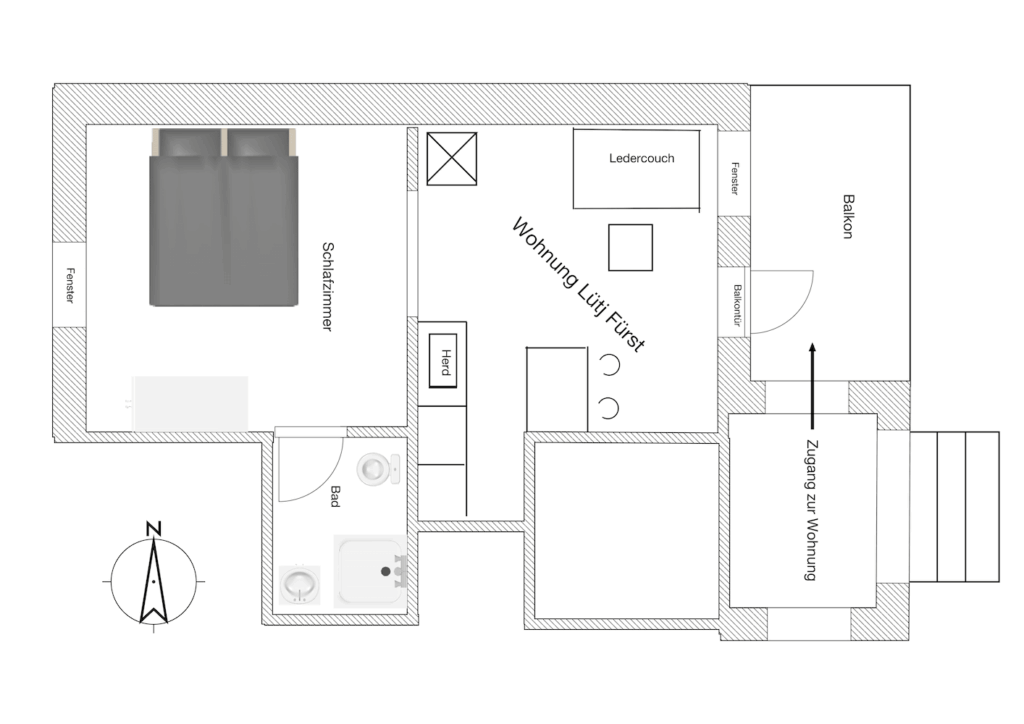
Grundriss einer Ferienwohnung

Lütj Fürst verbindet zeitgemäßen Komfort mit der besonderen Geschichte der Villa Dora. Als ehemaliger Salon des Hauses bewahrt die Wohnung bis heute eine ruhige Eleganz und eine besondere räumliche Klarheit.

Der offen gestaltete Wohn- und Küchenbereich prägt den Charakter der Wohnung und öffnet sich auf einen Balkon, der den Raum nach außen erweitert. Großzügige Fenster sorgen für Licht und eine angenehme Verbindung zwischen innen und außen, während die klare Gestaltung eine zurückhaltende, private Atmosphäre schafft.

Das Schlafzimmer ist ruhig zur Gartenseite gelegen. Die klare Trennung von Wohn- und Schlafbereich schafft einen geschützten Rückzugsort, der auf Ruhe und Entspannung ausgelegt ist.

Letj Fürst ist ein Ort für Gäste, die Stil, Geschichte und eine besondere Wohnatmosphäre schätzen.

Highlights der Wohnung

Balkon Icon

1 Balkon

Wohnzimmer Icon

Offener Wohn-/Essbereich

Bett Icon

1 Schlafzimmer

Dusche Icon

Hochwertiges Badezimmer

Balkon Icon

1 Balkon

Wohnzimmer Icon

Offener Wohn-/Essbereich

Dusche Icon

Hochwertiges Badezimmer

Bett Icon

1 Schlafzimmer

Küche Icon

Voll ausgestattete Küche

TV & Hi-Fi Icon

Moderne Technik

Hunde auf Anfrage erlaubt

Küche Icon

Voll ausgestattete Küche

TV & Hi-Fi Icon

Moderne Technik

Hunde auf Anfrage erlaubt